Valoisa ja avara 2000-luvun kivitalo Hikiässä, Hausjärvellä. Oma tontti rauhallisen tien päässä puiston ja pellon reunalla. Neljä makuuhuonetta. Varaava takka, ilmalämpöpumppu.
Pihapiirissä terassi ja rentouttava ulkoporeallas. Autotalli/lämminvarasto 54 m² muokattavissa tarvittaessa työtilaksi.
Alakoulu kävelymatkan päässä ja juna seisakkeellekin matkaa vain 1.5 km.
Tämä kivitalo yhdistää laadukkaan rakentamisen, avarat tilat ja luonnonläheisen, rauhallisen ympäristön.
Tiedustelut ja esittelytoiveet Marja Malin p. 044 775 0570
marja.malin@aitoasunnot.fi
Kohdetta myy

Aitoasunnot Oy RiihimäkiY-tunnus: 2600809-4Hämeenkatu 9 -15 L17
11100 Riihimäkiriihimaki@aitoasunnot.fi+358 19 388 220
11100 Riihimäkiriihimaki@aitoasunnot.fi+358 19 388 220
Esittely
Kohteen seuraavaa esittelyajankohtaa ei ole tiedossa
Perustiedot
37008780
37008780
Hausjärvi, Hikiä
Suikkarintie 18
12240 Hausjärvi
Suikkarintie 18
12240 Hausjärvi
Omakotitalo
Ei
Omistusasunto
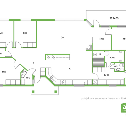
5 h, k, tkh, kph, s, khh, 2 wc, 2 vh, tekn.tila, ter
6 tai enemmän
177 m²
54 m²
190 m²
Pinta-alatiedot saatu rakennuslupa-asiakirjoista, eikä niitä ole tarkistusmitattu.
Huoneistoala 177 m²
Kerrosala 190 m²
Autotalli/varasto 54 m².
Kokonaisala 244 m².
Huoneistoala 177 m²
Kerrosala 190 m²
Autotalli/varasto 54 m².
Kokonaisala 244 m².
2000
2000
Neuvoteltavissa
2 kk kaupanteosta/sopimuksen mukaan.
2 kk kaupanteosta/sopimuksen mukaan.
Hinta ja kustannukset
268 000 €
268 000 €
1 514,12 € / m²
Laskettu velattomasta myyntihinnasta.
Laskettu velattomasta myyntihinnasta.
Vesi- ja jätevesi kulutuksen mukaan. Puhtaanapito tyhjennyskertojen mukaan. Kiinteistövero 559.72 €/2025. Sähköä kulunut n. 17000 kwh - 25000 kwh. Nuohous. Varainsiirtovero 3%.
Lisätiedot
Asunnossa on sauna
Muotolauteet. Heti valmis -sähkökiuas.
Muotolauteet. Heti valmis -sähkökiuas.
Nurmea, pihapuita, pensasaitaa. Ulkoporeallas.
Kyllä
Takkahuoneesta käynti terassille n. 30 m" terassille.
Takkahuoneesta käynti terassille n. 30 m" terassille.
Varaava takka
Vinyylilattian asennus keittiö 2022. Vinyylikorkkilattian asennus olohuone ja 1 makuuhuone 2017. Keittiö uusittu kalusteineen ja koneineen 2022. (Parmakeittiö) Ilmalämpöpumpun pesu ja huolto 2024. Ilmanvaihtokanavien nuohous 2022. Ulkoporeamme 2021.
E2013
Energiatodistus vanhenut 2024. Energiatodistus tekeillä.
Sähkölämmitys, puulämmitys
Lämmönjakotapa: sähköpatterilämmitys, sähköinen lattialämmitys, ilmalämpöpumppu
Lämmönjakotapa: sähköpatterilämmitys, sähköinen lattialämmitys, ilmalämpöpumppu
Teräsbetonilaatta. Harkko.
Kunnan vesijohto
Kunnan
Koneellinen poisto, koneellinen tulo, lämmönttalteenotto
Antenni-TV
Asunnon tilat ja materiaalit
Pääasiallinen rakennusmateriaali: Kivi
Leca-term harkko/ ohutrappaus
Pintamateriaalit: Kosteat tilat, eteinen, (keittiö) laattaa. Muut asuintilat vinyyli, vinyylikorkki, laminaattilattiat. Lattialämmitys laatotetuissa tiloissa.
Leca-term harkko/ ohutrappaus
Pintamateriaalit: Kosteat tilat, eteinen, (keittiö) laattaa. Muut asuintilat vinyyli, vinyylikorkki, laminaattilattiat. Lattialämmitys laatotetuissa tiloissa.
Keittiö uusittu kalusteineen ja kodinkoneineen 2022. Täyskorkeat jääkaappi ja pakastinkaapit. Liesituuletin, induktioliesitaso/kiertoilmauuni, astianpesukone ja viinikaappi. Reilusti kaappi- ja tasotilaa. Vinyylilattia. Ilmalämpöpumppu.
Avara, tilava olohuone. Vinyylikorkkilattia, seinät maalattu.
Varaava takka.
Varusteet: takka
Takkahuone olohuoneen jatkeena. Takkahuoneesta käynti terassille.
Varaava takka.
Varusteet: takka
Takkahuone olohuoneen jatkeena. Takkahuoneesta käynti terassille.
Lattiat laminaattia ja vinyylukorkkia. Seinät maalattu. Kaapistota.
Makuuhuoneiden määrä: 4
Makuuhuoneiden määrä: 4
Laatoitettu kylpyhuone. Kaksi suihkua, lasiseinä.
Kaksi erillistä wc:tä. Wc istuin, pesuallas, allaskaapisto, peilikaapisto, bidesuihku. Lattia ja seinät laatoitettu. Lattialämmitys.
Kaapistot, tasotilaa, pesukoneliitäntä. Lattialämmitys.
Laattalattia.
Laattalattia.
Autotallin yhteydessä lämmintä varastotilaa.
Vaatehuone: Kaksi vaatehuonetta.
Katto: Harjakatto
Katon pintamateriaali: Peltikate
Konesauma peltikatto.
Katon pintamateriaali: Peltikate
Konesauma peltikatto.
Asunnon tontti
86-404-1-417
Suikkarintie 18
1 456 m²
Tasamaa
Oma
Panttikirjat siirtyvät ostajalle lainoittamattomina kaupanteon yhteydessä.
Käytetty 243,60 k-m2
Asemakaava
Hausjärven kunta
Hausjärven kunta
0,20
Autotalli
Autotalli/lämmin varastotila n. 54 m² sekä autokatos.
Autotalli/lämmin varastotila n. 54 m² sekä autokatos.
Kyllä
Muut lisätiedot
Pihaa, peltonäkymät, asutusta.
Ulkoilureitit lähellä.
Alakoulu n. 0,40 km. Yläkoulu ja lukio Oitissa n. 9 km. Riihimäen palvelut n. 9 km.
Junaseisake n. 1.5 km.
Sähköliittymä, vesiliittymä, viemäriliittymä




















