Tämä kotoisa omakotitalo sijaitsee omalla yli 7 000 m²:n tilalla Ryttylässä.
Vuonna 1954 rakennettua ja 1980-luvun lopulla peruskorjattua taloa on remontoitu myös lähivuosina, mutta se kaipaa jo päivitystä ja pintaremonttia vastatakseen nykypäivän asumistarpeita.
Talo lämpenee sähköllä ja puulla. Tulisijoja löytyy joka kerroksesta – olohuoneeseen asennetaan uutta upeaa pystyuunia, keittiöstä löytyy puuhella ja sekä yläkerrasta että kellarissa on varaava tiilitakka. Ilmalämpöpumppu uusittiin v. 2023.
Suuri tasainen pihapiiri on pääosin nurmea ja rajoittuu osittain peltoon. Noin 100 m²:n ulkovarasto soveltuu korkeutensa ja leveiden oviensa ansiosta monenlaiseen käyttöön.
Ruokakauppa, alakoulu ja muut Ryttylän palvelut n. 2 km päässä, junaseisakkeelle n. 1,20 km. Riihimäen keskusta n. 10 km, Oitti n. 20 km. Kakslammin ulkoilureitit, Ykslammin uimaranta ja frisbeegolfrata vain kivenheiton päässä.
Remontoi tästä unelmiesi koti luonnonläheisessä ympäristössä!
Kohdetta myy

11100 Riihimäkiriihimaki@aitoasunnot.fi+358 19 388 220
Esittely
Perustiedot
12310 Hausjärvi
Lisäksi erillinen ulkovarasto 91/100 m² (huoneistoala/kerrosala), ulkomitat 8 x12,5 m. Pinta-alatieto perustuu rakennuspiirustukseen.
Pinta-aloja ei ole tarkastusmitattu.
Hinta ja kustannukset
Laskettu velattomasta myyntihinnasta.
Lisätiedot
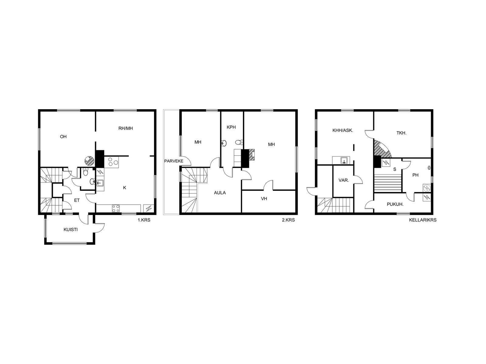
Koko talon levyinen parveke, jolta kulku portaita pitkin terassille/ulos.
Puulämmitteinen sauna. Lattia: laatta. Seinät: puupaneeli.
Parvekkeen alla pieni terassi.
Viimeisin nuohous suoritettu syksyllä 2024.
Kunnallistekniikkaan liitytty veden osalta v. 2005.
Olohuoneen ja alakerran makuuhuoneen/ruokailuhuoneen seinät levytetty uudelleen v. 2009.
Keittiön ja eteisen laminaattilattia asennettu v. 2010.
Alakerran wc remontoitu (vesieristys, laatoitus, kalusteiden vaihto) v. 2011.
Keittiö remontoitu (ulkoseinien lisäeristys sisäpuolelta, uretaani-kipsilevy,
tarkastettu purut,tapetoitu, uusittu välitilalaatat, uusittu pääosa kodinkoneista ja kaapistot vaihdettu).
Kellarin takka muurattu v. 2014.
Yläkerran kylpyhuoneen takaosan laatoitus (seinät vanhan laatoituksen päälle, uusi vesieristys vanhan laatan päällä, lattiasta poistettu vanha laatta ja tehty uusi vesieristys) v. 2016.
Ilmalämpöpumppu uusittu 2023.
Uusi pystyuuni olohuoneeseen 2025 (kesken).
Pintaremonttia (mm. yläkerran lautalattiat maalattu, seinä- ja kattopintoja
pintaremontoitu v. 2016-2020)
Mikäli ostaja remontoi kaupan kohteessa sijaitsevia rakennuksia, ostajan tulee ennen remontin aloittamista teettää tarvittaessa kohteeseen asbestikartoitus. Kartoitus vaaditaan teetettäväksi rakennuksissa, joiden loppukatselmus on tehty ennen vuotta 1994. Mikäli asbestia kartoituksessa ilmenee, tulee ostajan teettää asbestinpurku alan ammattilaisella.
Ilmalämpöpumppu, sähköpatterit, sähköinen lattialämmitys (kellarin kodinhoitohuoneessa, kellarin pesuhuoneen lattialämmitys ei toimi).
Pihassa lisäksi vanha vesikaivo.
Jätevesiselvitys on tehty v. 2016. Jätevesijärjestelmä ei täytä nykymääräyksiä. Kiinteistöä koskee vesihuoltolain mukainen velvollisuus liittyä kunnalliseen jätevesiverkostoon (tontin rajalla). Liittymisestä ja siitä aiheutuvista kustannuksista vastaa ostaja.
Asunnon tilat ja materiaalit
Pienemmästä makuuhuoneesta käynti parvekkeelle/ulos. Suuremman
makuuhuoneen yhteydessä vaatehuone (ullakko) ja varaava takka.
Alakerran makuuhuone toimii tällä hetkellä ruokailuhuoneena. Seinät:
tapetti/maali. Lattia: lauta. Kellarin takkahuone on viimeksi käytetty makuuhuoneena.
Yläkerran kylpyhuoneessa suihkuvaraus, wc-istuin, peili, pesuallas, allaskaappi, kaapistot. Seinät: laatta. Lattia: laminaatti/laatta.
Toinen wc yläkerran kylpyhuoneen yhteydessä. Lattia: laatta. Seinät: laatta.
Varastotilaa mm. ullakolla ja kellarissa. Lisäksi erillinen n. 100 m² ulkovarasto.
Katon pintamateriaali: Peltikate
Asunnon tontti
Erillinen n. 100 m² kylmä ulkovarasto, jonka sisäkorkeus n. 3 m, kaksi leveää ja yksi kapeampi käyntiovi.
Muut lisätiedot
Oitin keskusta n. 20 km, Riihimäen keskusta n. 10 km, Hämeenlinnan keskusta n. 30 km.
Kakslammin ulkoilureitit kulkevat tien toisella puolella, Ykslammin uimaranta ja frisbeegolfrata n. 500 m päässä.





































