Kolmen huoneen valoisa kerrostaloasunto Mikkelin keskustan tuntumassa ja lisäksi lämmin autotalli.
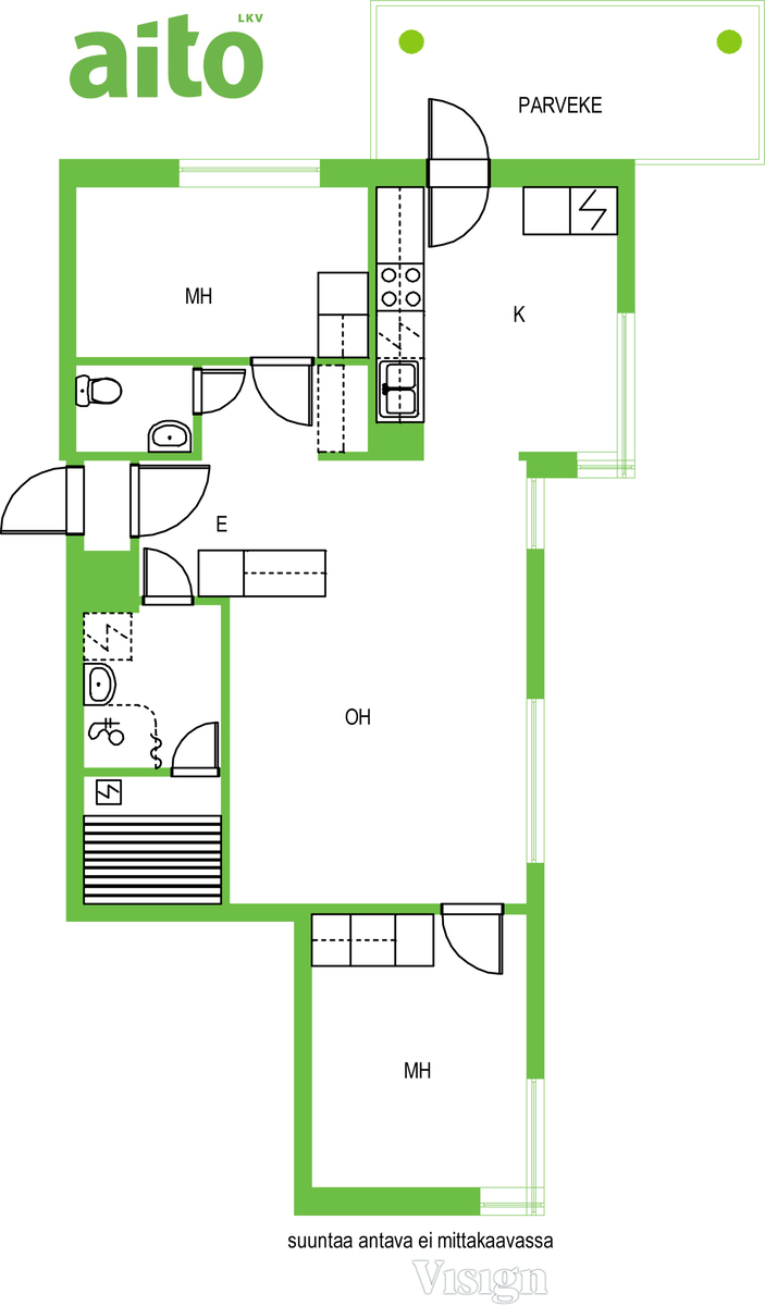
Tervetuloa tutustumaan tähän viihtyisään ja hyvin hoidetussa taloyhtiössä sijaitsevaan 3 h + k + s + lasitettu parveke -asuntoon Mikkelin keskustan tuntumassa. Asunnon yhteydessä on myös mahdollista ostaa autotalli (15 m²) hintaan 13 000 €.
Tilava ja toimiva koti keskustan palveluiden äärellä
Asunnossa on valoisa olohuone, kaksi erillistä makuuhuonetta, sauna, erillinen WC sekä tilava lasitettu parveke, joka jatkaa oleskelutiloja pitkälle keväästä syksyyn. Keittiö on käytännöllinen ja hyvin varusteltu: jääkaappipakastin, pakastekaappi, astianpesukone, keraaminen liesi ja laminaattitasot tekevät arjesta sujuvaa. Kodin lattioissa on parkettia ja laminaattia, seinät ovat pääosin maalattuja – kokonaisuus on siisti ja helposti muokattavissa omaan makuun sopivaksi.
Sijainti: Mikkelin keskustan tuntumassa – kaikki palvelut käden ulottuvilla
Sijainti Mikkelin keskustan tuntumassa tarjoaa kävelyetäisyydellä kaikki palvelut: kaupat, koulut, päiväkodit, torin, ravintolat ja kulttuurikohteet. Liikenneyhteydet ovat erinomaiset, ja alue on rauhallinen mutta elävä – täydellinen yhdistelmä kaupungin mukavuutta ja kodikasta asumisrauhaa.
Ota yhteyttä ja sovi esittely!
Pertti Häkkinen
Myyntineuvottelija, Rakennusmestari
+358 40 197 2274
pertti.hakkinen@aitoasunnot.fi
Kohdetta myy

50100 MIKKELImikkeli@aitoasunnot.fi+358 15 338 700
Esittely
Perustiedot
Yrjönkatu 2
50100 Mikkeli
Vapautuminen 6 kk.
Hinta ja kustannukset
Laskettu velattomasta myyntihinnasta.
Hoitovastike 319 € / kk
Rahoitusvastike 124 € / kk
Lisätiedot
Suuri lasitettu parveke.
Tummasävyinen sauna, jossa on hyväkuntoiset lauteet.
Varusteet: sähkökiuas
Seinien pintamateriaali: paneeli
Lattian pintamateriaali: laatta
Lämmönjakotapa: vesikiertoinen patterilämmitys
Asunnon tilat ja materiaalit
Varusteet: jääkaappipakastin, pakastin, astianpesukone, keraaminen liesi, liesikupu
Seinien pintamateriaali: maalattu
Lattian pintamateriaali: parketti
Seinien pintamateriaali: maalattu
Lattian pintamateriaali: parketti
Seinien pintamateriaali: maalattu
Lattian pintamateriaali: laminaatti
Makuuhuoneiden määrä: 2
Varusteet: suihku, allaskaappi, peilikaappi, pesukoneliitäntä
Seinien pintamateriaali: kaakeli
Lattian pintamateriaali: laatta
Varusteet: lattiaan asennettu WC, allaskaappi, peili
Seinien pintamateriaali: kaakeli, maalattu
Lattian pintamateriaali: muovi
Katon pintamateriaali: Peltikate
Taloyhtiö
2025 Huoneistokohtaisten palovaroittimien asennus
2024 Vesikaton kuntokartoitus ja korjaussuunnittelu
2023 Parvekekattojen vesivahingon korjaus
2023 Sähkölämmitysvastus parvekekatoille
2022 Autotallinovien huoltomaalaus
2022 Pohjaviemärien huuhtelu, kuvaus ja salaojien tutkimus
2022 Väestönsuojan tarkastus
2022 Vesikaton tarkastus
2021 IV-puhdistus ja säätö, korvausilmaventtiilien uusinta
2019 Kiinteistökatselmusraportti
2018 Kaukolämpölaitteiden uusinta, lämmityksen tasapainotus
2018 Ulkovalaistuksen parantaminen
2017 Hissin peruskorjaus
2015 Luhtikäytävien lattioiden pinnoitus
2012 IV-puhdistus ja säätö
2011 Kylpyhuoneiden korjaus
2009 Jätekatoksen huoltomaalaus
2009 Sokkelien huoltomaalaus
2007 Parvekkeiden alapintojen huoltomaalaus
2006 KTV-liittymä
2005 Lukituksen uusinta Abloy Exec
2003 Parvekelattioiden pinnoitus
2003 Pihan asfaltointi
2003 Parvekekattojen muutos 3 asuntoa
2025 Ikkunoiden ja parvekeovien tarkistus
2026-2027 Ulko-ovien lukkojen uusinta
2026 Yleisten tilojen lattioiden huoltomaalaus
Sähköautojen latausinfran tarve?
Muut lisätiedot
Asunnon käytössä olevat autopaikat: autotalli
Autotalli myydään erikseen hintaan 13.000 €.






















