Uudisomakotitalo Kerttulan rauhallisella loma-asunto- ja omakotitaloalueella.
Mäntyharju tarjoaa täydellisen yhdistelmän luonnonrauhaa ja käytännöllisiä palveluita. Tämä uudisomakotitalo sijaitsee Kerttulan suositulla loma- ja omakotialueella, vain seitsemän kilometrin päässä Mäntyharjun palveluista. Rauhallinen Paasolan kaupunginosa tarjoaa turvallisen ja viihtyisän asuinympäristön
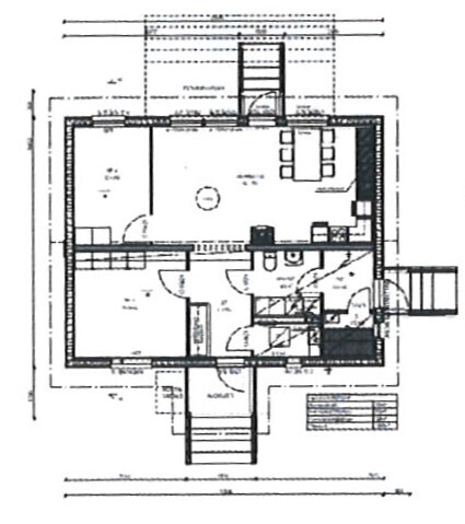
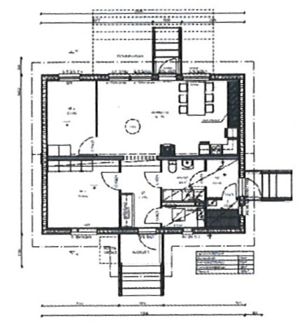
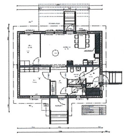
Vuonna 2022 valmistunut talo tarjoaa monipuoliset asuintilat, yhteensä 79 m². Avokeittiö luo yhtenäisen ja toimivan kodin keskuksen, kun taas kaksi makuuhuonetta tarjoavat riittävästi yksityisyyttä.
Moderni koti sisältää kaikki tarvittavat mukavuudet: täysin varustetun keittiön tiskikoneella ja mikrolla, oman saunan sekä kylpyhuoneen lattialämmityksellä. Olohuoneessa takka lisää lämpöä ja toimii tunnelman luojana. Olohuoneesta pääsee myös aurinkoiella terasssille josta näkymät Pyhävedelle. Vilvoitteluterassille pääsee suoraan kylpyhuoneesta. Sähkölämmitystä täydentää ilmalämpöpumppu.
Kerttulan alue tarjoaa poikkeuksellisen monipuoliset yhteiskäyttöpuitteet: uimaranta ja rantasauna Pyhävedellä, kuntopolku ja hiihtoladut, tenniskenttä, lasten leikkipaikka sekä minigolfrata. Nämä palvelut tekevät alueesta erityisen viihtyisän kaikenikäisille asukkaille.
Ota yhteyttä ja varaa esittelyaika tähän valoisaan ja nykyaikaiseen kotiin – täydellinen yhdistelmä modernia asumista ja luonnonläheisyyttä!
Kohdetta välittää

50100 Mikkelimikkeli@aitoasunnot.fi+358 15 338 700
Esittely
Perustiedot
Katrintie 5
52700 Mäntyharju
Hinta ja kustannukset
Lisätiedot
Saunan lauteet, kuusi.
Varusteet: sähkökiuas
Seinien pintamateriaali: paneeli
Lattian pintamateriaali: laatta
Lämmönjakotapa: ilmalämpöpumppu, vesikiertoinen lattialämmitys
Sähkölämmitys jonka lisänä takka. Ilmalämpöpumppu.
Asunnon tilat ja materiaalit
Varusteet: jääkaappipakastin, astianpesukone, mikroaaltouuni, keraaminen liesi, liesituuletin
Seinien pintamateriaali: maalattu
Lattian pintamateriaali: laminaatti
Lattian pintamateriaali: laminaatti
Lattian pintamateriaali: laminaatti
Makuuhuoneiden määrä: 2
Varusteet: suihku, lattialämmitys
Seinien pintamateriaali: kaakeli
Lattian pintamateriaali: laatta
Lattian pintamateriaali: laatta
Varusteet: pesukoneliitäntä
Lattian pintamateriaali: laatta
Asunnon tontti
Yhteisranta. Rantaviivaa n. 400 m.
Pyhävesi




















